ESCUELA UNIÓN MUJERES AMERICANAS, BUCALEMU

Superficie:
2.874 m²

Ubicación:
CAMINO A BUCARRUCA S/N, ROL 336-67, SECTOR BUCALEMU ALTO, COMUNA DE PAREDONES, PROVINCIA DE CARDENAL CARO, REGIÓN DE O’HIGGINS.

Año:
2019

Mandante:
GOBIERNO REGIONAL DE O’HIGGINS

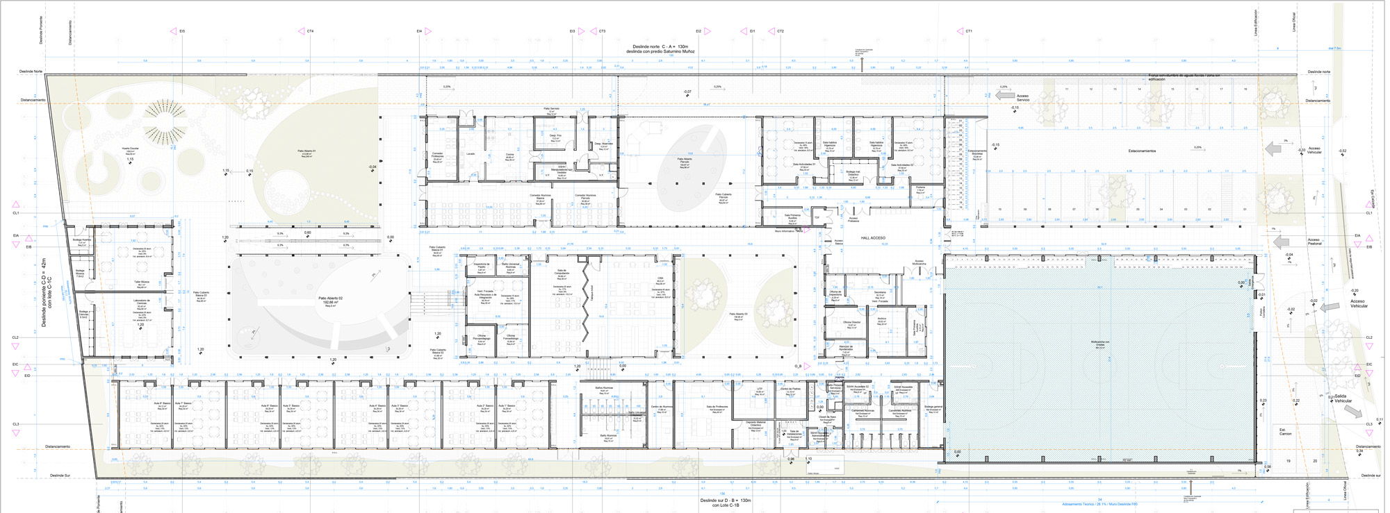
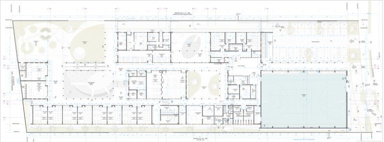
Descripción

La idea del proyecto, es desarrollar una volumetría simple y austera, pero a la vez consistente y rotunda, en consonancia con los Graneros de Sal existentes en la zona, caracterizados con sus cubiertas a dos aguas. Junto a esto, se reconoce la ruralidad típica del centro sur de Chile, de la que goza Bucalemu, mediante el agrupamiento y sucesión de volúmenes y patios, caracterizando al vacío alrededor de las edificaciones.

 

Con ello se busca:

-Conformar un lugar íntimo, continuo y seguro, que permita el desarrollo de distintas actividades en forma simultánea, alojando así todos los usos y actividades de una escuela.

-Desarrollar el proyecto en un solo nivel de manera de favorecer su funcionalidad, conexiones, seguridad, accesibilidad e intercambio entre alumnos y profesores.

-Establecer una graduación desde lo más público a lo más privado, permitiendo así resguardar la seguridad de los niños y el uso de la infraestructura disponible (gimnasio) por parte de la comunidad.